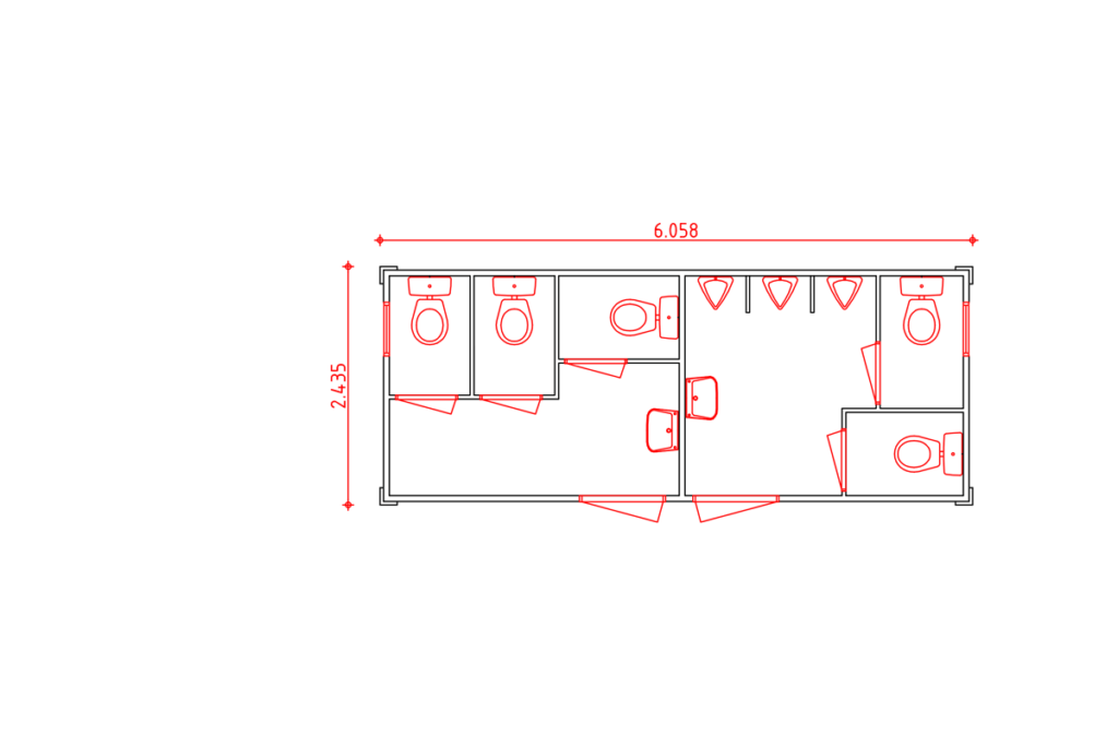
Sanitair unit
Gescheiden sanitairDeze sanitair unit is voorzien van een gescheiden indeling met twee aparte ingangen. Hierdoor kunnen meerdere gebruikers tegelijk gebruikmaken van de voorzieningen. De unit is praktisch ingericht en geschikt voor situaties waarin capaciteit en doorstroming belangrijk zijn.
{acf_other_comments_content}
Laten plaatsen
Wij verzorgen het transport en de plaatsing van de units op locatie.
Samen met u stemmen we de planning af, zodat levering en plaatsing aansluiten op uw situatie. De transportkosten zijn afhankelijk van de locatie, bereikbaarheid en het type unit. Wij geven hier vooraf duidelijk inzicht in.
Zelf plaatsen
In sommige gevallen is het mogelijk om de unit zelf te plaatsen, afhankelijk van de situatie en het type unit. Wij adviseren u hier graag over.
Heeft u specifieke wensen of vragen over de planning of plaatsing? Wij denken graag met u mee.
Veelgestelde vragen
Welke vergunning moet ik aanvragen voor het tijdelijk plaatsen van een unit?
In veel gevallen dient u een tijdelijke omgevingsvergunning aan te vragen voor het tijdelijk plaatsen van een unit.
Ik heb een unit gehuurd maar heb deze niet meer nodig. Hoe zeg ik de huur op? En met welke opzegtermijn moet ik rekening houden?
De huur van een unit kan telefonisch of per mail opgezegd worden.
Er wordt een opzegtermijn van minimaal 2 weken gehanteerd.
Hoe gaat het transport van een unit in zijn werk?
Het transport van een unit kan door Klein Units verzorgd worden. De unit wordt dan getransporteerd met een vrachtauto met kraan.
Echter bent u ook vrij om zelf het transport te regelen en de unit bij ons af te laten halen.
Wat is de levertijd van een unit?
De levertijd van een unit verschilt per situatie.
Mits de unit voorradig en beschikbaar is, streven wij ernaar om de unit binnen 5 werkdagen te kunnen leveren op locatie [m.u.v. woonunits en schakelunits].
Hoe vraag ik een offerte aan?
U kunt op verschillende manieren een offerte aanvragen, namelijk:
- per telefoon
- per mail
- per contactformulier [per specifiek product of algemeen]
Vraag een vrijblijvende offerte aan
HUREN
Deze unit bieden wij aan voor verhuur. Uiteraard zorgen wij ervoor dat deze aansluit bij uw wensen en gaan wij voor een snelle en complete service. De units zijn efficiënt ingedeeld met toiletten, urinoirs, wastafels, douches en boilers. We zorgen ervoor dat de unit compleet en veilig op locatie wordt afgeleverd. Is er tijdens het gebruik een storing, dan lossen wij dat snel voor u op. Is de unit niet langer nodig, dan halen we deze weer op.
KOPEN
Deze unit is ook te koop. Waar wij ons bij huur vasthouden aan een standaard assortiment, zijn er bij verkoop meer mogelijkheden. Zo kunt u zelf de indeling bepalen, zijn er diverse opties qua sanitair en ook energiebesparende opties behoren tot de mogelijkheden. De afmetingen zijn standaard (van 10ft tot 30ft) en de breedtemaat van 2,44 meter ligt vast. De unit kan in meerdere standaard kleuren geleverd worden of desgewenst zelfs in uw bedrijfskleur! Neem contact op voor de mogelijkheden.















